Our Process

At Cicero Designs, we guide you through the project stages, ensuring clarity, compliance, and successful execution of your vision.

1 - Consultation & Project Vision:

The journey of every project at Cicero Designs begins with a dedicated consultation. This initial stage is arguably the most critical, as it sets the foundation for everything that follows. Whether you are envisioning a modern custom home, a functional garden suite, or a complex multi-unit residential conversion, we start by listening. During this consultation, we dive deep into the scope of your project, discussing your lifestyle needs, aesthetic preferences, and long-term goals. We also address the practicalities of feasibility and budget early on to ensure that your vision aligns with realistic construction outcomes.  By the end of this stage, you will have a clear understanding of the design path forward. We provide a comprehensive, transparent proposal that outlines the professional fees.

3 - Design & Planning:

This is the creative heart of Cicero Designs process, where your vision begins to take visual form. We translate the data gathered during the preliminary stage into initial design concepts, developing floor plans and elevations that communicate the flow and character of the building. Your input at this stage is paramount; We view our relationship as a partnership. We review multiple variations together, refining the architectural language and spatial layouts until they perfectly reflect your intent. However, design in Ontario is often dictated by the need for municipal approval.

If your ideal design pushes past the standard zoning limits, we transition into the zoning and Committee of Adjustment (COA) phase. In cases where a minor variance is required to achieve your goals.  We manage the entire application process on your behalf. This includes preparing the necessary documentation and presenting your case to the municipality.  We navigate the back-and-forth with city planners to advocate for your project, ensuring that the creative integrity of the design remains intact while securing the legal permissions necessary to move into the final technical drafting phase.

Ready to get your project moving?

2 - Preliminary & Site Feasibility:

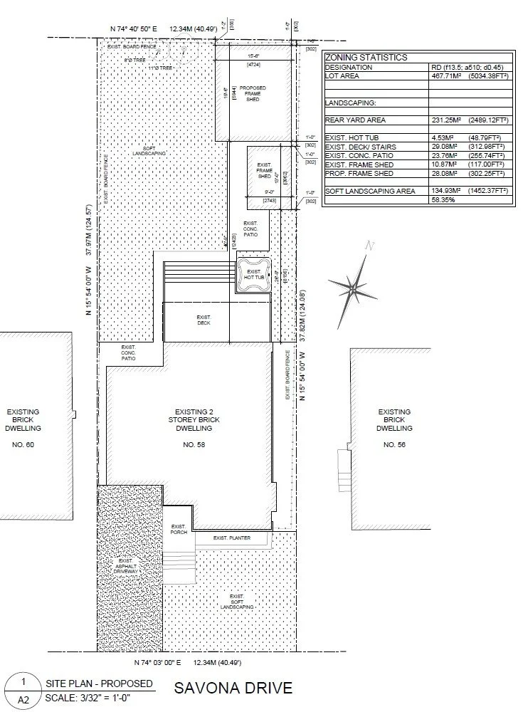
Once we move into the preliminary stage, the focus shifts to technical accuracy and regulatory research. For renovation and addition projects we perform a detailed site measure of the interior and exterior of your existing home.  We then conduct a thorough review of local zoning by-laws (setbacks, height, lot coverage, etc.) to ensure your project is built on accurate, compliant data from the start.

Zoning regulations are complex and vary significantly between municipalities. We analyze critical data points such as front, rear, and side-yard setbacks, maximum building heights, total lot coverage, and required landscaping percentages. By identifying these parameters before a single creative line is drawn, we ensure that our design strategy is grounded in what is legally permissible. This "due diligence" phase minimizes the risk of future delays and allows us to determine if your project can proceed "as-of-right" or if we will need to strategically plan for a minor variance. This stage bridges the gap between a conceptual dream and a buildable, compliant reality.

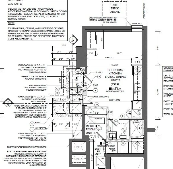
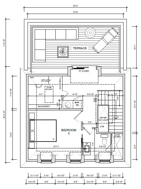
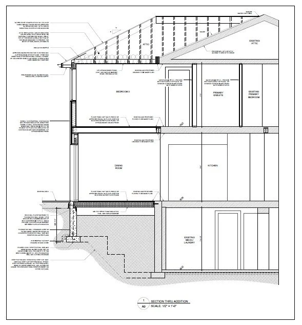
4 – Construction Drawings & Permit Issuance

The final stage is the transition from creative design to technical execution. Once the architectural concept is locked in and any necessary zoning approvals are secured, we begin the production of comprehensive working drawings. This package is not just a set of pictures; it is a highly detailed technical manual for your builder and the municipal building officials. It includes site plans, floor plans, building sections, construction details, and material specifications.

During this phase, we work in close coordination with structural engineers to integrate necessary load-bearing elements seamlessly into the design. This collaborative effort ensures that the aesthetic beauty of the home is supported by sound structural integrity. These drawings contain all the vital information required for the building permit application and, ultimately, for the contractor to provide an accurate construction quote. Our goal is to deliver a "permit-ready" package that sails through the municipal review process. From the first sketch to the final stamped permit, Cicero Designs provides the professional oversight your investment deserves.

Contact